So you’re planning a barndominium and wondering if you can add a basement. I get it. It’s one of the first questions I hear from people mapping out their build.
The good news is yes, can barndominiums have basements, and the answer is a clear yes. But it’s not a simple yes for everyone.
A lot of factors go into it, from your soil type and water table to your local building codes and budget.
In this guide, I’ll walk you through all of it. We’ll cover structural feasibility, barndominium foundation with basement options, costs, and what actually makes it possible on your land.
After researching barndominium builds and consulting structural guidelines used in post-frame construction, I’ve found that basement feasibility depends heavily on soil conditions and engineering design.
By the end, you’ll know exactly what to do next.
What Is a Barndominium?

A barndominium is a steel or metal-frame structure that doubles as a home.
It started as a barn conversion trend but has grown into a full housing option for people who want space, durability, and lower building costs.
Most barndominiums sit on a concrete slab. That’s the standard setup. But as more people want extra storage, living space, or tornado shelters, the question of basements keeps coming up.
Can Barndominiums Have Basements? The Direct Answer
Yes, barndominiums can have basements. It is possible. But it’s not automatic.
The structure itself doesn’t prevent it. The real deciding factors are your land, your local codes, your soil conditions, and your budget. Some sites are perfect for it. Others make it very difficult.
If your land supports it and your budget allows it, a barndominium basement adds serious value and space to your build.
Structural Feasibility Explained for a Barndominium Foundation With Basement

This is where most people get confused. Let me break it down simply.
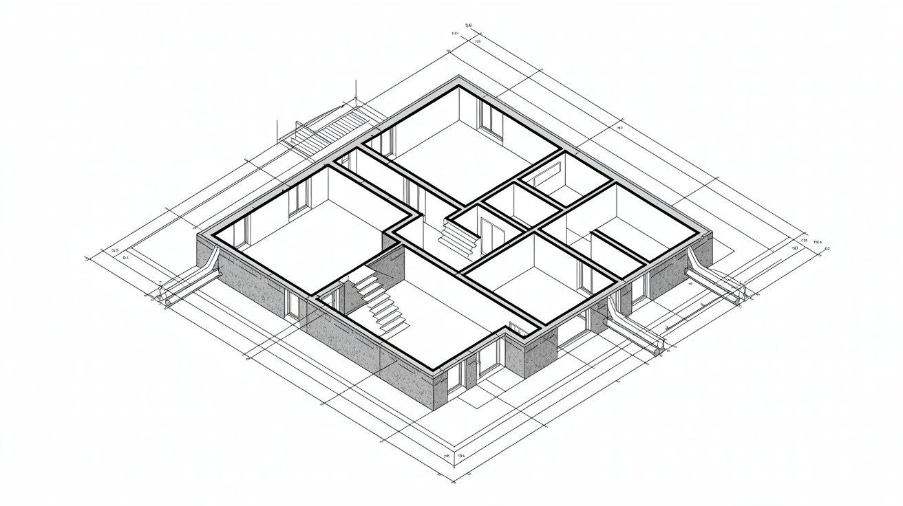
Barndominiums are typically built on slab foundations. Slabs are fast, affordable, and work well for metal buildings. A basement, however, requires full excavation and poured concrete walls below grade.
Can a metal building have a basement? Yes, but the load transfer is different from a wood-frame home. Metal post-frame buildings concentrate loads at specific post anchor points. Your foundation design needs to account for that. A structural engineer must review the plan before anything gets built.
Soil conditions matter a lot here. Rocky or unstable soil makes excavation costly. High clay content can shift and push against basement walls over time.
Moisture is another issue. Basements need serious drainage and waterproofing systems. Without them, water intrusion becomes a recurring problem.
Local building codes also vary. Some areas require specific footing depths or engineering approvals before you can add a basement under any structure, including a barndominium.
11 Key Factors That Determine If You Can Add a Basement
Not every site is right for a barndominium basement, and knowing these factors upfront saves you time, money, and a lot of frustration.
1. Soil Type and Stability

Sandy or rocky soil makes excavation harder and more expensive. Clay-heavy soil can shift and crack walls over time. Get a soil test before committing to any basement plan.
2. Water Table Levels

If your water table is high, a basement will constantly fight moisture. In some areas, it simply is not practical. A local geotechnical report will tell you where you stand before you spend anything.
3. Climate and Frost Lines

In colder climates, footings must go below the frost line. This works in your favor when building a barndominium basement, since you are already required to dig deep.
4. Type of Barndominium Frame (Steel vs Wood)

Steel post-frame buildings have specific load-transfer points. Your foundation design must align with those anchor points. A structural engineer needs to approve the design before construction starts.
5. Foundation Design Compatibility

Not all foundation designs work with a basement. Your builder and engineer need to plan the barndominium foundation with basement from day one, not as an afterthought.
6. Local Building Codes

Some counties restrict basement construction based on flood zones, soil type, or zoning rules. Check with your local permit office early so there are no surprises later.
7. Budget Constraints

Basements add significant cost to a barndominium build. Barndominium basement cost typically ranges from $30,000 to $100,000 or more depending on size, soil, and finish level.
8. Intended Basement Use (Living vs Storage)

An unfinished storage basement costs far less than a finished living space. Decide your intended use before planning, since it affects everything from ceiling height to drainage design.
9. Drainage and Waterproofing Systems

You will need a sump pump, exterior waterproofing membrane, and proper grading. Skipping these steps leads to expensive water damage later.
10. Contractor Experience

Not every barndominium builder has basement experience. Find someone who has done it before on a metal building specifically. Ask for references and past project examples.
11. Land Slope and Topography

A sloped lot can make basement construction easier and cheaper. A walkout basement reduces excavation costs and gives you natural light and a ground-level entry.
Pros of Having a Basement in a Barndominium
Extra space is the biggest draw. A basement gives you room for storage, a workshop, a storm shelter, or even additional bedrooms.
In tornado-prone areas, a below-grade room is a smart safety feature. It also adds resale value in most markets where basements are expected.
A basement can also house mechanical systems like HVAC, water heaters, and electrical panels, freeing up your main living area and keeping things organized.
Cons and Challenges You Need to Know
Cost is the main downside. A basement significantly increases your build budget compared to a standard slab.
Moisture management is ongoing. Even a well-built basement needs attention over time, especially in humid climates.
Not all land supports it. If your soil or water table is problematic, costs go up fast.
It also adds weeks to your build timeline. Excavation, forming, and pouring happen before the above-grade structure even begins.
How Much Does It Cost to Add a Basement to a Barndominium?
Barndominium basement cost varies widely based on location, size, soil conditions, and finish level. Here is a breakdown to give you a realistic starting point.
Before you look at the numbers, keep in mind that these are estimates. Your actual barndominium basement cost will depend on local labor rates, soil conditions, and the scope of your project.
| Cost Item | Estimated Cost Range |
|---|---|
| Excavation | $10 to $25 per sq ft |
| Concrete foundation walls | $20 to $40 per sq ft |
| Waterproofing membrane | $3,000 to $10,000 |
| Sump pump system | $1,500 to $5,000 |
| Drainage tile and gravel | $2,000 to $6,000 |
| Interior framing and drywall | $15 to $30 per sq ft |
| Electrical and plumbing rough-in | $5,000 to $15,000 |
| Permits and engineering fees | $2,000 to $8,000 |
| Unfinished basement total (est.) | $20,000 to $50,000 |
| Finished basement total (est.) | $50,000 to $100,000+ |
| Walkout basement (sloped lot) | 20 to 30% less than full excavation |
Always add a 15% buffer to your budget for unexpected soil or drainage issues. Excavation projects almost always reveal something that wasn’t in the original plan.
Best Foundation Options for Barndominiums (Compared)
Choosing the right foundation for your barndominium with basement plans is one of the most important decisions you will make in the entire build.
Slab foundation: Most common, lowest cost. No basement is possible with this option.
Crawl space foundation: Elevated off the ground, allows some access underneath. Not a livable basement but better than a slab for moisture and mechanical access.
Full basement foundation: Most expensive option. Adds livable or storage space and works well when soil and water table conditions are right.
Walkout basement: Best option for sloped lots. Lower cost than full excavation and provides natural light and a ground-level entry point. Ideal for barndominiums built on hillsides.
Step-by-Step: How to Build a Barndominium With a Basement

Building a barndominium with a basement takes more planning than a standard slab build, but when done right, the result is worth every step.
Step 1: Planning and Design Phase
Work with a structural engineer and an experienced barndominium builder to align your post-frame design with a basement-compatible foundation plan. This has to happen before any permits are pulled.
Step 2: Soil Testing and Site Prep
Test your soil before anything else. This determines excavation difficulty, drainage needs, and whether a barndominium basement is even viable on your lot.
Step 3: Excavation Process
A licensed contractor digs to the required depth based on your frost line, basement ceiling height, and local code requirements for a barndominium foundation with basement.
Step 4: Pouring Foundation Walls
Concrete walls are formed and poured. Reinforcement bars are placed based on your structural engineer’s specifications and the load requirements of your metal frame.
Step 5: Erecting the Barndominium Structure
Once the foundation has cured fully, your metal frame goes up. Post anchor placement must align precisely with the foundation design.
Step 6: Waterproofing and Finishing
Apply exterior waterproofing membrane, install drainage tile, add a sump pump system, and finish the interior based on your planned use.
Common Mistakes to Avoid
- Skipping the soil test before finalizing plans
- Hiring a builder without metal building basement experience
- Underbudgeting for waterproofing and drainage
- Not checking local codes before designing the basement
- Treating the basement as an afterthought rather than part of the original plan
Where Basements Work Best for Barndominiums
Sloped lots are the best-case scenario. A walkout basement reduces excavation and gives you a natural entry point.
Cold climates work well too, since deep frost line requirements mean you are already digging far enough to justify a full basement.
Dry regions with stable soil and low water tables are ideal for standard barndominium basement construction without added drainage complexity.
Alternatives If a Basement Isn’t Feasible
If a basement does not work for your site, a loft is one of the most popular alternatives for extra living space in a barndominium. A detached storage building is another cost-effective option.
Some people also build a small storm cellar or root cellar as a cheaper alternative to a full basement.
It won’t give you the same square footage, but it covers the safety and storage needs that most people want a basement for in the first place.
Expert Tips to Make It Work Successfully
Get a geotechnical report before finalizing your plans. This one step saves thousands in surprises during excavation.
Hire a structural engineer with specific experience in post-frame or metal buildings. Not all engineers are familiar with how load paths work in a barndominium foundation with basement design.
Budget at least 15% above your initial barndominium basement cost estimate. Excavation projects almost always uncover unexpected conditions.
Plan your basement use before the build starts. Whether you want living space, storage, or a storm shelter changes the foundation design requirements.
Conclusion
Barndominiums can absolutely have basements. After going through everything from soil conditions to barndominium basement cost, the biggest takeaway is this: plan it from the start.
I’ve seen builds go smoothly when the basement was part of the original design. I’ve also seen costly problems when people skipped soil testing or hired builders without the right experience.
Can a metal building have a basement? Yes.
But it takes the right land, the right team, and honest budgeting. If those three things line up for you, a barndominium with a basement is absolutely worth building.
So here’s my question for you: have you done a soil test on your lot yet?
Frequently Asked Questions
Can you add a basement to an existing barndominium?
It is technically possible but very difficult and expensive. Building it into the original plan from the start is almost always the smarter approach.
What is the average barndominium basement cost?
Costs typically range from $20,000 for an unfinished basement to over $100,000 for a fully finished space, depending on size, soil, and location.
Can a metal building have a basement?
Yes, a metal post-frame building can have a basement with proper structural engineering. The foundation must be designed to match the load points of the metal frame.
How deep does a barndominium basement need to be?
Standard depth is 8 to 9 feet for livable space. In cold climates, footings must also extend below the local frost line, which may require additional depth.
Is a walkout basement a good option for a barndominium?
Yes, especially on a sloped lot. It reduces excavation costs, adds natural light, and gives you a ground-level entry point that a standard basement does not offer.